太阳集团tyc539官网
设为首页
加入收藏
联系我们
首页
太阳概况
学院简介
领导班子
师资队伍
学术带头人
专业带头人
教师风采
教育教学
专业设置
教学成果
教学动态
线上课程
科学研究
科研创作
科研动态
太阳集团
团学活动
学生风采
特色活动
下载中心
当前位置:
首页
>
展示空间
>
环境设计
> 正文
展示空间
环境设计
戏剧影视美术设计
视觉传达设计
摄影
环境设计
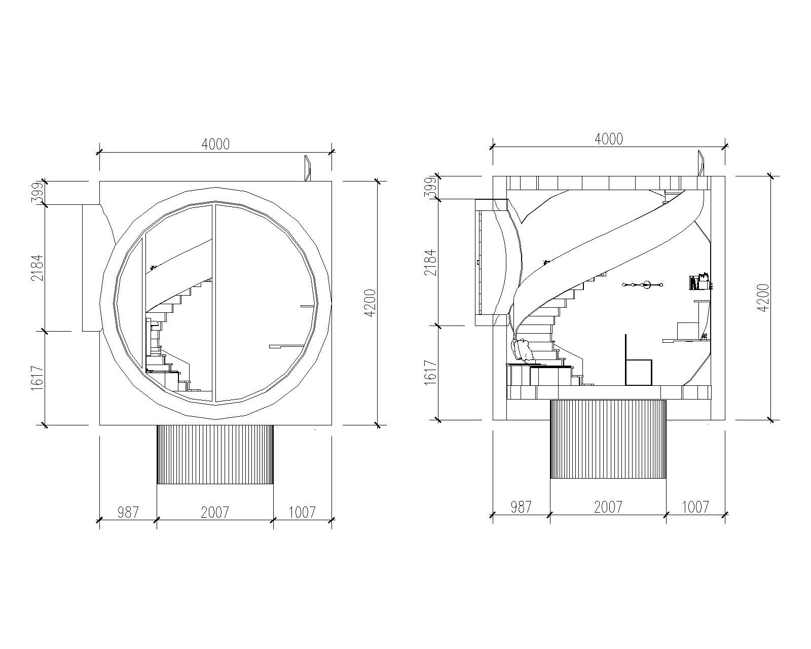
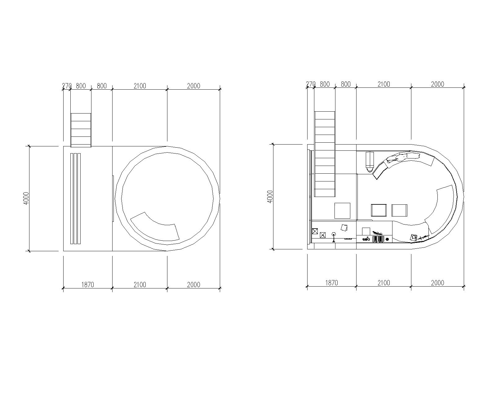
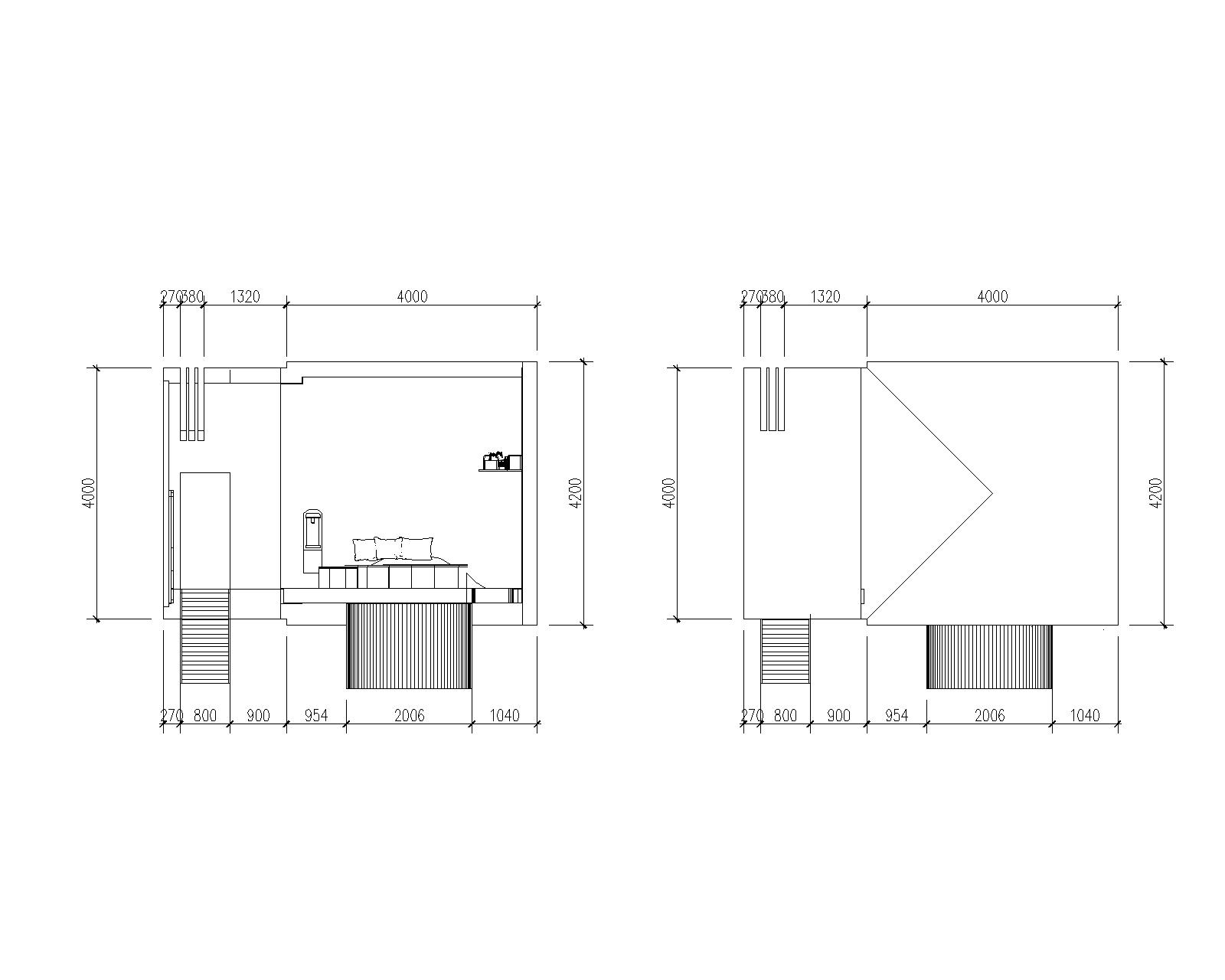
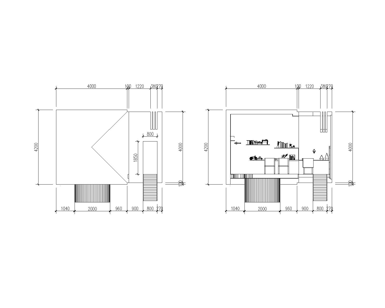
模块化建筑方案 陈潜
时间:2019-07-01 作者: 点击: 次
上一条:
太阳集团tyc5392018级环境设计专业园林赏析结课展
下一条:
牟林浩—交城县农业产业园区标识系统设计(一等奖)